Мнения современников
Лачужки этой нет уж там. На месте
Ее построен трехэтажный дом…
Мне стало грустно: на высокий дом
Глядел я косо. Если в эту пору
Пожар его бы охватил кругом,
То моему б озлобленному взору
Приятно было пламя…
А.С. Пушкин. Домик в Коломне
Почему же петербуржцы XIX века упорно считали свой город каменным, несмотря на то что фактически он был наполовину деревянным? В формировании облика Петербурга в сознании горожан главную роль играла центральная часть. Именно этот Петербург многократно описан и воспет писателями и поэтами. Он ужасал их:
Мертвы и сумрачны домов немых громады.
А. Голенищев-Кутузов. Лампада
В мертвых громадах кирпичных,
Мокрых от вечных дождей,
Много их – серых, безличных,
Смертью дышащих людей.
Дети каменной неволи
Многоярусных гробниц!
В. Князев. Из цикла «Проклятый город»
Статистические данные, приведенные выше, указывают на материал постройки, но не на облик дома. В Петербурге было принято штукатурить деревянные дома, делая их внешне практически неотличимыми от каменных. Так, в разных районах оштукатуривались от 30 до 73 % деревянных домов. Это делалось как для сохранности древесины во влажном климате, так и из-за соображений престижа, а значит – более высокой цены квартир, сдаваемых в аренду. Выступающие концы бревен закрывали вертикальными досками (что препятствовало их гниению) и штукатурили. Получались пилястры, указывающие на количество капитальных перпендикулярных стен. Чтобы придать дому респектабельный вид, его украшали деревянными (тоже оштукатуренными) карнизами с резными барочными или античными орнаментами, возводили деревянные портики с деревянными колоннами. И колонны, и пилястры завершались деревянными резными капителями, которые после оштукатуривания по виду не отличались от каменных. Кстати, и у каменных дворцов иногда сооружались деревянные колонны (сделанные из дуба, они отличались чрезвычайным долголетием).

Большой проспект В.О. Фото до 1914 г.
Для восприятия города как каменного (более чем подлинное количество домов из кирпича) важен тот фактор, что каменные дома строились в основном многоквартирными, поэтому к концу XIX века четверо из пяти петербуржцев жили в каменных домах.
Как же относились к материалу постройки своих жилищ сами горожане? Россияне традиционно предпочитали жить в деревянных, считая их более пригодными для жилья, как бы мы сегодня сказали – более экологичными.
Кроме того, каменные дома оказывались настолько дорогими в строительстве и содержании, что владение ими наводило на мысль о нечестных способах приобретения. Это, кстати, нашло отражение в пословице: «От трудов праведных не наживешь палат каменных».

Большая Дворянская улица. Фото 1900 г.

Одноэтажный доходный дом, оштукатуренный, на две трехкомнатные квартиры, посередине – пилястра, закрывающая концы бревен. Альбом проектов Г.М. Судейкина. 1916 г.

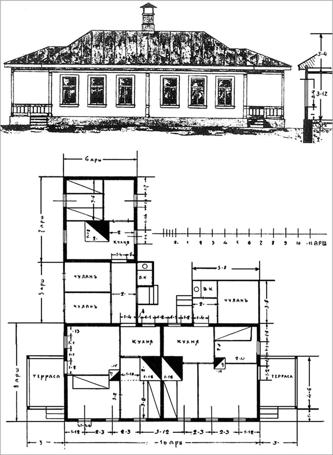
Проект двухэтажного доходного дома размером 12 ? 16 метров: 8 двухкомнатных квартир, теплый ватерклозет, кухня с уголком для постели прислуги. Каждая квартира имеет парадный и черный ходы. Альбом проектов Г.М. Судейкина. 1916 г.
Возникает резонный вопрос: зачем же все-таки возводились каменные строения? Иметь каменный дом было престижно, и это, пожалуй, единственное объяснение. Престижность каменного дома в сочетании с привычкой и желанием жить в деревянных помещениях привели к распространению смешанных домов: деревянный верх – с жилыми комнатами, а в каменном первом этаже располагались или парадные помещения, если дом принадлежал дворянину, или торговые и складские помещения, если домовладельцем был купец. Конечно, речь идет здесь об особняках.
В начале ХХ века Петербургская и Выборгская стороны, Охта, южные окраины и западная часть Васильевского острова, состоявшие почти исключительно из деревянных одноэтажных домиков и воспринимавшиеся современниками как предместья (хотя официально они входили в границы города), начали застраиваться каменными громадами.
Дома стоят, как каменные горы,
Над маревом болотистых полян,
Осклизлые, но то не кровь из ран,
А гной, смертельный гной точат их поры.
А. Скалдин. Петербург
Районы, ранее похожие на улочки второстепенного уездного города, теперь почти ничем не отличаются от центральных. В августе 1903 года писатель С.Р. Минцлов записывает в своем дневнике: «Строительная горячка, несколько лет охватившая Петербург, продолжает свирепствовать. Везде леса и леса; два-три года тому назад Пески представляли собой богоспасаемую тихую окраину, еще полную деревянных домиков и таких же заборов. Теперь это столица. Домики почти исчезли, на их местах, как грибы, в одно, много в два лета, повыросли громадные домины; особенно быстро похорошела третья Рождественская. <…> Замечательно и то, что иные дома стоят еще без дверей и окон, из них тянет, как из погребов, сыростью и холодом, а уже в газетах пестреют объявления о сдаче квартир в них. Нарасхват идут!»

Смешанный дом: первый этаж – каменный, а второй – деревянный на Малой Итальянской. Акварель Ф.Ф. Баганца. 1860-е гг. Фрагмент
В июле 1904 года С.Р. Минцлов возвращается к этой теме: «Старый Петербург все уничтожается и уничтожается… Нет ни одной улицы почти, где бы старые двух- и даже трехэтажные дома не ломались; теперь на их месте возводятся новые кирпичные же громады».
Быстрые изменения облика города, происходившие в последней четверти XIX века и в начале ХХ века, крайне негативно воспринимались современниками. От восторженного пушкинского признания «Люблю твой строгий стройный вид» постепенно к концу века формируется ужас от каменного Петербурга:
Раскинут темными кварталами,
Ты замер, каменный, в гробу,
Дома безмолвны над каналами
И люди мечутся в бреду.
В. Канев. Тебе, Петербург
Почему так тяжело ощущали себя петербуржцы в слишком каменном, как им казалось, Петербурге? Мне кажется, причина в том, что провинциал, попадая в большой город, очень остро ощущал и переживал контраст по сравнению с оставленным где-то укладом жизни.
Вот как об этом поведал И.А. Гончаров в «Обыкновенной истории»: «Александр подошел к окну и увидел одни трубы, да крыши, да черные, грязные, кирпичные бока домов… и сравнил с тем, что видел, назад тому две недели, из окна своего деревенского дома. Ему стало грустно. Он вышел на улицу, посмотрел на домы – и ему стало еще скучнее: на него наводили тоску эти однообразные каменные громады, которые, как колоссальные гробницы, сплошною массою тянутся одна за другою. „Вот кончается улица, сейчас будет приволье глазам, – думал он, – или горка, или зелень, или развалившийся забор“, – нет, опять начинается та же каменная ограда одинаковых домов, с четырьмя рядами окон. И эта улица кончилась, ее преграждает опять то же, а там новый порядок таких же домов. Заглянешь направо, налево – всюду обступили вас, как рать исполинов, дома, дома, камень и камень, все одно да одно… нет простора и выхода взгляду: заперты со всех сторон, – кажется, и мысли, и чувства людские также заперты. Тяжелы первые впечатления провинциала в Петербурге. Ему дико, грустно…»
Более 800 000 книг и аудиокниг! 📚
Получи 2 месяца Литрес Подписки в подарок и наслаждайся неограниченным чтением
ПОЛУЧИТЬ ПОДАРОКДанный текст является ознакомительным фрагментом.